“Honey…I think we should add that 1st floor Powder Room”

“Honey…I think we should add that 1st floor Powder Room”

Having worked in Philadelphia row houses for over 25 years, I've removed as many powder rooms as I've added. This topic has been at the top of the list recently, most likely tied to the limited inventory in housing, and the climbing cost of purchasing another home. It seems owner’s, having outgrown their space, are ruminating about that “1st floor Powder Room” much more frequently than in years past.

I’ve seen a limitless variety in planning and execution...some with success and others that appeared to be quickly sketched and assembled in a panic. When considering building a powder room (a small) bathroom with just a toilet and sink) within your 1st floor space, here are a few important things to keep in mind:

  1. Space and layout: Ensure you have enough space in your area to accommodate a powder room without making the space feel too cramped or awkward. Measure carefully and consider the placement of the door and how it will impact traffic flow.
  2. Plumbing: Adding a new bathroom requires running new plumbing lines for the toilet, sink, and potentially a small ventilation fan. This can be costly and may require opening up walls or floors, depending on the existing plumbing layout.
  3. Ventilation: Proper ventilation is crucial in a powder room to control odors and moisture. You may need to install an exhaust fan vented to the outside or explore other ventilation options.
  4. Privacy and noise: A powder room in a small living area may compromise privacy and noise levels during gatherings or meals. Consider adding sound insulation or placing the powder room strategically to minimize disturbances.
  5. Resale value: While a powder room can be a convenient addition, some potential buyers may view it as an odd or undesirable location, which could impact resale value. Consult with a real estate professional about the potential impact on your home's value.
  6. Building codes and permits: Check with your local building department to ensure you comply with all relevant codes and obtain the necessary permits for the renovation.

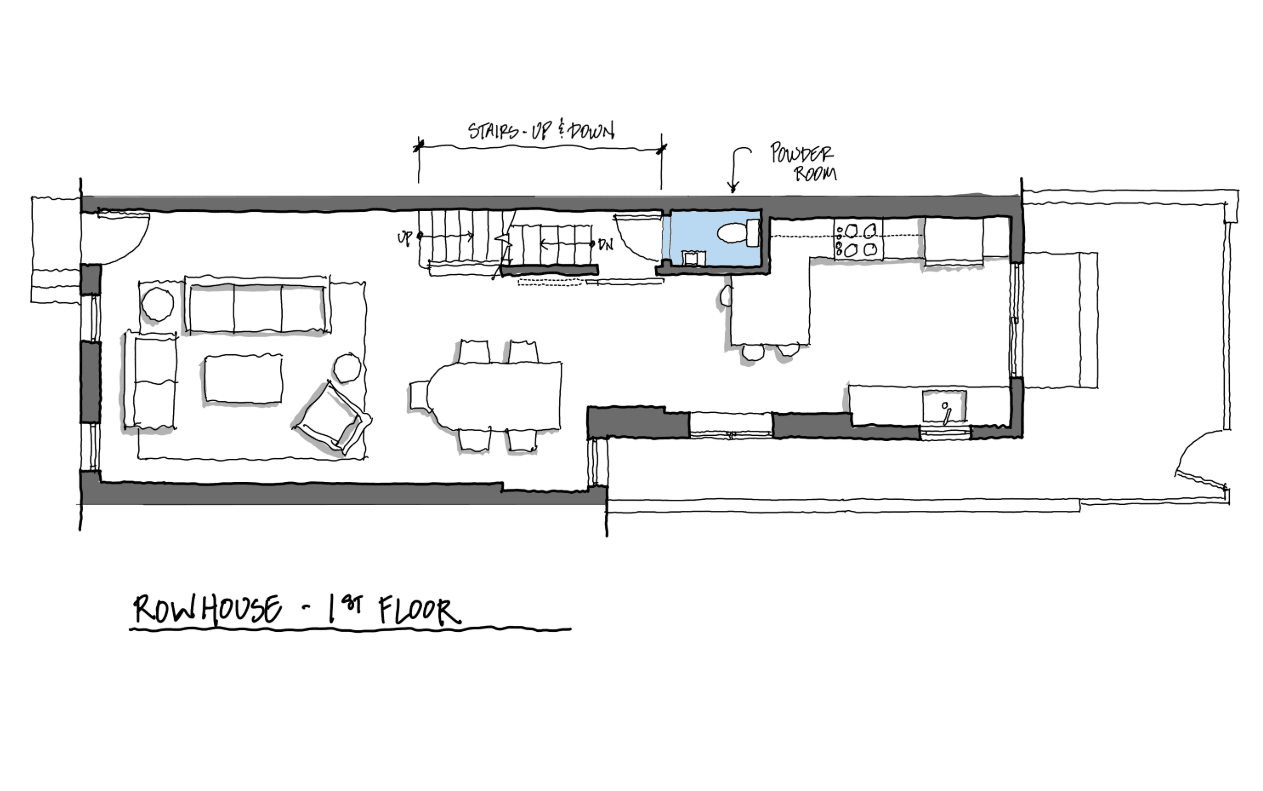
I’ve included a small sample of plans that have worked for clients over the years. The common denominator is that we’ve been able to tuck the room away, at least a little bit, with the intent of maximizing privacy. Concealing those spaces next to stairways, or behind coat closets usually does the trick.

For those many rooms that were removed, I’ve created a little thumbnail perspective of a “before" situation where the bath covered an oh-so-precious window, a very common occurrence in Philly. A photo of that renovated Dining area reveals the reclaimed natural light. In this scenario, we decided to add a second smaller bathroom just up the stairs, understanding that the square footage at the living level was too precious to give to a powder room. (Follow this link to the entire listing)

Going through the effort to rearrange your space to make way for a Powder Room is a significant undertaking, so carefully weigh the pros and cons, consider the costs involved, and determine whether it's the best use of your available space and resources.

“Honey…I think we should add that 1st floor Powder Room”
“Honey…I think we should add that 1st floor Powder Room”
“Honey…I think we should add that 1st floor Powder Room”

Work With Us

Our unique interests and passions allow us to better understand our clients’ varied needs and to serve them in an authentic and holistic way. When given an opportunity to help re-envision the local real estate marketplace, we took a creative risk, tried something different, committed to an idea and made a promise to ourselves and our clients that it would pay off.

Follow Us on Instagram